OYA AutoCAD 2008 Tip Adjust the Dimension Spacing

One Year Ago (OYA)
Recycling tips that are still valuable and may not be found except by a search engine. This tip is also good for AutoCAD 2009.

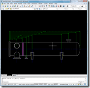
AutoCAD DIMSPACE You know you have seen them before, a series of baseline dimensions with differing spaces or adjusted manually until they look fine. You can use the DIMSPACE command to adjust the space to a set distance between them or use the default automatic. So I put together a quick example of using DIMSPACE.

From the Menu Dimension> Dimension Space

AutoCAD DIMSPACE

From the Dimension toolbar
AutoCAD DIMSPACE
AutoCAD DIMSPACE

From the AutoCAD Command Line: DIMSPACE

Before using DIMSPACE
AutoCAD DIMSPACE

Baseline dimensions selected

AutoCAD DIMSPACE

Completed with a consistent spacing between dimensions

AutoCAD DIMSPACE

For the smart buggers that need multiple ways or are currently shouting out the alternatives at their browser, yes you could also use QDIM to change the style or space as well and perhaps 3 or more others ways to accomplish it but I was trying to focus on DIMSPACE. 😉

Cheers
Shaan

Leave a Reply